Mata*Garcia Architects LLP, a Rio Grande Valley architectural firm based in McAllen, has been selected as the architect for the Weslaco High School Music Halls. The following drawings and information provide a walk-through of the proposed facility. Mata*Garcia Architects can be contacted at 1314 West Ivy Avenue, McAllen, Texas, 78501. Tel: 956.631.1945, Fax: 956.631.1968, email: hgarcia@mvgdesign.us.

Site Plan: The proposed site is located south of Wing "I", the marching band practice field and Border Avenue are to the east, Panther Drive is south of the facility and the baseball/tennis court parking lot is to the west. The main entry will face the existing campus. A parking area for the music directors will be placed between Wing "I" and the new Music Halls. Parents dropping-off/picking-up music students will loop around the parking area and line the stacking area along the south side of the driveway. The placement allows for direct access from the academic wings, secured access onto the site, close proximity to the marching practice field and sufficient space for future expansion of the facility.

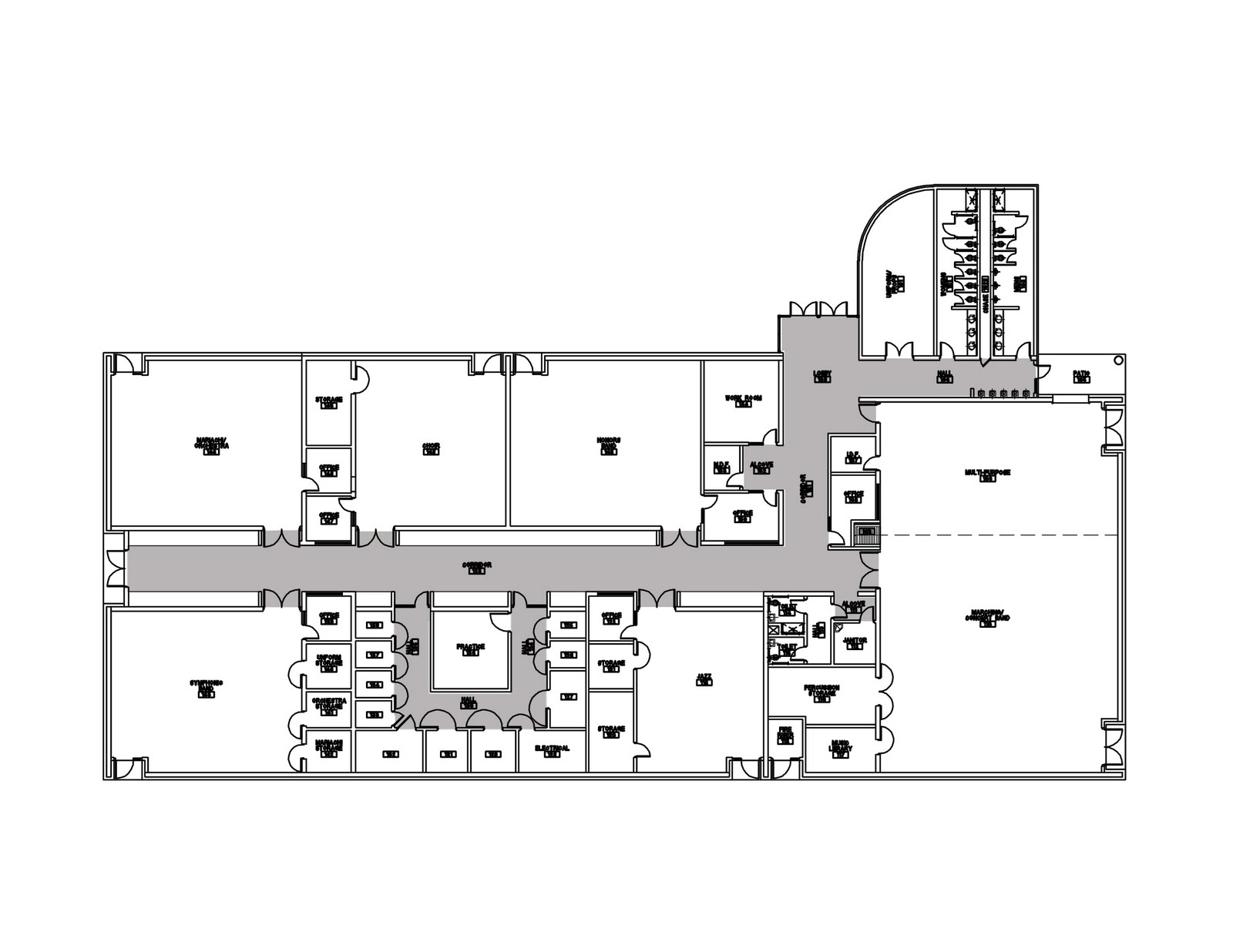
Overall Floor Plan: Total Square Footage - 22,836 S.F. Rehearsal Halls: Marching Band - 4,298 S.F.; (Divisible Rehearsal Hall - Multi-purpose Room 1,800 S.F., Concert Band - 2,498 S.F.), Jazz - 1,000 S.F., Mariachi/Orchestra - 1,508 S.F., Symphonic Band - 1,550 S.F., Choir - 1,212 S.F., Honors Band - 1,545 S.F. Support Spaces: Shared Offices for Directors, Workrooms, Eleven Student Practice Rooms - with seating ranging from two to twelve students, Storage Rooms for each music group, Instrument Storage Areas, Music Library, Uniform and Prop Storage Areas, Student Restrooms and Faculty Restrooms.
Circulation: The central corridor (shaded gray) ties all areas of the facility and at the same time subtly differentiates public, semi-public and private areas. The corridor also provides directional movement as it leads students towards the main campus, the marching practice field and allows for an easy connection to future expansion of the floor plan.
Student Restrooms and Uniform/Props Storage Room: Located just off the Entry Lobby, these support spaces were located here to accommodate students as they enter and leave the facility as well as providing direct access from the Marching Band Practice Field during the Fall season. A loading dock adjacent to these spaces will facilitate loading of props from the storage room and music instruments through the garage door access from the Marching Band Rehearsal Hall.

Marching Band Rehearsal Hall / Multi-Purpose Room / Concert Band Rehearsal Hall: At 4,298 square feet, the Marching Band Rehearsal Hall is designed to accommodate 250 students. The hall will have direct access from the main student corridor (which houses the instrument storage lockers for all the music programs), direct access to the marching practice field to the East and direct access through a garage door to the loading dock. In order to enhance acoustics and minimize clutter, all instrument lockers have been located in the main student corridor. Support spaces for this rehearsal hall include a Director's Office, Percussion Storage and a Music Library. After the end of marching season, the Marching Band Rehearsal Hall can be divided through the use of folding wall panels to form a Concert Band Rehearsal Hall, 2,498 S.F., and a Multi-purpose Room, 1,400 S.F. All rehearsal halls will receive natural day lighting, which will enhance student performance and lower energy costs, through multiple sola-tube skylights.

Multi-purpose Room: Once marching season is over, the rehearsal hall can be divided into two spaces. Among the uses for the Multi-purpose Room are recitals, sectionals, dance practice, and guitar lessons. At 1,400 S.F. the Multi-purpose Room will allow each music program a flexible space in addition to its designated rehearsal hall.
Concert Band Rehearsal Hall: The other space created by dividing the Marching Band Rehearsal Hall is the 2,498 S.F. Concert Band Rehearsal Hall. This hall will accommodate 80 students during the concert season.
Jazz Band Rehearsal Hall: The 1,000 S.F. rehearsal hall will accommodate 25 student musicians during Jazz I and Jazz II classes. Open risers will allow for practice to be held in a concert setting. Support spaces include a Director's Office and Storage Areas.
Music Practice Rooms: Designated for use by all music programs, the Music Practice Rooms include - six practice rooms for two people each, four practice rooms for up to four people each, and one practice room for up to twelve people. The location of the practice rooms allows for easy supervision by music directors.
Mariachi/Orchestra Rehearsal Hall: The 1,508 S.F. rehearsal space will accommodate 35 guitar students, 35 Mariachi student musicians and 30 Orchestra student musicians. Support spaces include a Director's Office and separate storage areas for Mariachi and Orchestra.
Symphonic Band Rehearsal Hall: Designed to accommodate 40 band students, the 1,550 S.F. rehearsal hall includes the same basic amenities as the other halls.
Choir Rehearsal Hall: At different times, this 1,212 S.F. rehearsal hall will accommodate the Treble Beginner's Choir, Mixed Beginner's Choir, Treble Choir and Varsity Show Choir. Support spaces include a Director's Office and a storage area.
Honors Band Rehearsal Hall: This 1,545 S.F. rehearsal hall will house the 40 students in the Honor's Band. The hall includes the same basic ammenities as the other rehearsal halls.
Seating Plan: The floor plan shows a layout of rehearsal seating for each hall.

Main / North Elevation: Facing the main campus, the exterior materials compliment, are sympathetic to, yet enhance the existing facades. The original campus walls are simple corrugated concrete tilt-up panels with a base of Mexican tiles and built-up roofing. The Music Halls exterior walls will have the same corrugated profile, but the materials selected for this project are galvanized metal panels. The base of the wall continues the use of the Mexican tiles. The metal panels will allow for a contemporary look along with a 24 foot tall entry light-box and 18 foot tall rehearsal hall doorways paired with steel angle trellis panels that will be planted with cross-vines. The shape and height of these details mimic those found at the main gymnasium. Four rain-collection silos will contain roof rain-water and be used for irrigating the facility's landscaping. Using simple materials allows for the detailed used of additional acoustical materials in the rehearsal halls. Multiple sustainable features will be used throughout the facility and will be highlighted on a future posting.

Detail - Main Entry: Left to Right, Garage door access to loading dock, trellis with cross-vines at perimeter wall of the Uniform/Prop Storage/Student Restrooms, and Main Entry - which allows light deep into the Lobby area as well as serve as a focal point for students and visitors. The glass panels will feature vinyl cut-outs of musical compositions, composers, instruments and shows.
Detail - North Elevation: Left to Right, trellis panels with cross-vines, door and window panels - with translucent glazing - to the Symphonic Rehearsal Hall, and rain-collection silo.